Коттедж 9.4х7м «Чацкий-2»

Коттедж 9.4х7м «Чацкий-2»

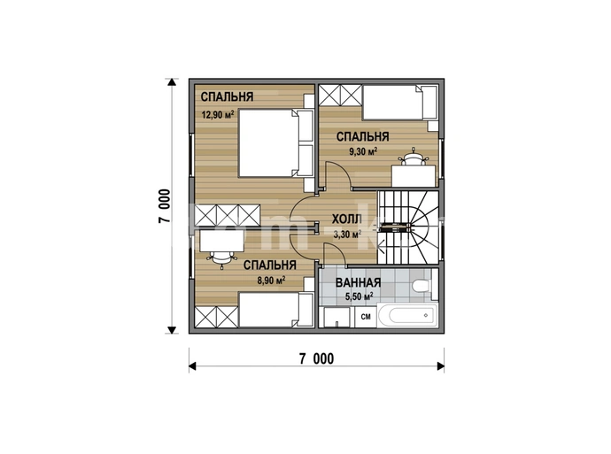
Просторный дом сочетает в себе удобство планировки и лаконичность. На первом этаже в большой кухне -гостиной с панорамными окнами можно устроить семейный праздник со множеством гостей, а дополнительный выход на веранду позволит перенести торжество в сад. На втором этаже – три уютные спальни, просторная ванная и холл.

Размер: 9,4х7 м

Общая площадь: 106,4 кв.м

Этажность: 2 этажа

Технология строительства

ЗИМА

Базовая стоимость:

4341000 руб.

в кредит:

Размер платежа рассчитывается индивидуально Изображение

Кредит Европа Банк, до 10 лет, без первоначального взноса

Комплектации

Мы не навязываем дополнительные услуги, комплектации сформированы с учетом всех пожеланий заказчика и купить их можно по той цене, которую вы видите на сайте.

Коттедж "Чацкий-2" 9,4х7 м

Технология: ЗИМА

Свайно-винтовой: металлические винтовые сваи диаметром 108мм, длинной 2500мм с антикоррозийным покрытием

Брус: 150х150мм

Лаги пола из сухой доски: 140х40мм (шаг 59см)

Утепление 150мм (экологичный плитный базальтовый утеплитель ISOROC)

Черновой пол: 150х25мм

Ветро-гидроизоляция пола: мембранные пленки "ONDUTISS", класс "А"

Пароизоляция пола: мембранные пленки "ONDUTISS", класс "В"

Каркас - сухой брус 140x40 мм, отделка вагонкой камерной сушки "Имитация бруса" 16мм снаружи и 13мм внутри

Утепление 150мм (экологичный плитный базальтовый утеплитель ISOROC)

Вентилируемый фасад (контробрешетка 40х20мм)

Ветро-гидроизоляция/пароизоляция наружных стен: мембранные пленки "ONDUTISS" класс "А/В"

По проекту

Каркас - сухой брус 90х40мм обшит с двух сторон вагонкой камерной сушки «имитация бруса» 13мм

Брус 200х100мм

Стропила сухие 140х40мм

Обрешетка 150х25мм

Контробрешетка 30х50мм

Ветро-гидроизоляционная мембрана "ONDUTISS" класс "АМ"

Подшивные-строганная доска

Оцинкованный цветной профнастил завод Металлопрофиль (цвет по каталогу)

Каркас из сухого бруса 140х40мм, отделка вагонкой камерной сушки "Имитация бруса" 16мм

Вентилируемый фасад (контробрешетка 40х20мм)

Ветро-гидроизоляция/пароизоляция: мембранные пленки "ONDUTISS" класс "А/В"

Шпунтованная доска 28мм

Утеплитель - экологичный плитный базальтовый ISOROC

Утепляются: полы 1 этажа, стены, фронтоны, скаты крыши в 150 мм.

По проекту - прямая или угловая, ограждена плоскими балясинами

Высота 2,44м на первом этаже

Высота 2,3м на втором этаже

Зашит вагонкой камерной сушки 13мм

Пароизоляция: мембранные пленки "ONDUTISS", класс "В"

По проекту

Окна - пластиковые, немецкого профиля REHAU, 2-х камерный стеклопакет

Ограждены с внешней и внутренней стороны деревянными наличниками, снаружи снизу устанавливается металлический отлив в цвет окон

По проекту

Входная дверь - металлическая российского производства, с замком.

Межкомнатные двери - деревянные филенчатые

Если есть на проекте

Ограждение - горизонтальный брус

Потолок подшит вагонкой камерной сушки «имитация бруса» 16мм

Полы - доска шпунтованная 28мм камерной сушки

Бесплатно

В пределах 30 км от офиса-бесплатно

Выбрать время строительства, при заказе сегодня:

Итого: руб

описание

Уважаемый клиент, если Вам понравился какой-то из наших проектов, Вы можете внести в него любые изменения, добавить веранду, балкон, изменить окна, отделать сайдингом, изменить фундамент и прочее. Комплектация наших домов и бань сразу включает надежные и качественные материалы, мы не строим дома «Трех поросят» - с полами из 21 мм доски, тонким каркасом, без контробрешетки, из сырой вагонки и прочими сомнительными материалами и технологиями. За разумные деньги Вы получите на самом деле надежный и качественный продукт. В этой таблице мы описываем более подробно наши технологии.

Базовый столбчатый фундамент

Используются монолитные бетонные тумбы размером 40х40х40 см, не пустотелые. Заливка тумб происходит в цеху и к Вам на участок они приезжают уже готовыми. Нивелиром отмечаются точки установки и тумбы устанавливаются на землю без заглубления по уровню. Не подходят для пучинистых грунтов (глин и суглинков), а также для участков с большим перепадом высот.

Изображение

Свайно-винтовой фундамент

Мы используем металлические сваи с антикоррозийным покрытием Hemplix длинной 2500мм и диаметром 108мм. Несущая способность каждой сваи-4-5 тонн на сваю. Срок службы до 50 лет. Рекомендуется оставлять сваю над поверхностью земли не более 40 см (из-за величины снегового покрова по Московской области и высоты цокольного сайдинга до 43 см.), но по желанию клиента может быть практически любой высоты. Закручивается специальным устройством. Подъезда транспорта на участок не требуется.

Изображение

Ленточно-монолитный фундамент

Для деревянного домостроения рекомендуется мелко заглубленный фундамент общей высотой 1000мм (500мм цоколь и 500мм подземная часть), если не предусматривается погреб или цокольный этаж . Подсыпка песчаной подушки-10-15см. Гидроизоляция рубероид. Вентиляционные продухи и два пояса рефленной арматуры. Рекомендуемая ширина не более 400 мм. Не подходит для болотистых и влагонасыщенных грунтов. Необходимо помнить, что твердение бетона 28 дней.

Изображение

Ростверк

Ростверк-это комбинация свайного фундамента и ленточного. Сваи могут быть как металлические, так и асбестоцементные. Наземная часть выполнена в виде армированного ленточного фундамента. Подходит практически для всех типов почв, кроме известковых. Более дорогой и время затратный по сравнению с классическим свайно-винтовым.

Изображение

Обвязка пола двойная

На гидроизоляцию фундамента мы укладываем обвязку пола – брус 150х100 мм и лаг 150х50 мм с шагом 590мм. Черновой пол - доска обрезная 150х25мм. Ветро-гидро и произоляция -  мембранные пленки ISOSPAN

Изображение

Покрытие пола

Шпунтованная доска камерной сушки 28мм или 36мм. Мы не используем половую доску «принудительной», «атмосферной» и прочих сушек.

Также под линолеум или ламинат мы рекомендуем половое покрытие - строительны плиты QuickDeck.

 

Изображение

Вентилируемый фасад

Контробрешетка, пожалуй, самая необходимая вещь в каркасном доме. Без нее срок службы Вашего строения сократиться в несколько раз. Обеспечивает отвод конденсата от всех слоев стен и кровли. Создает дополнительную шумо- и теплоизоляцию. Пространство, которое появляется благодаря ее монтажу, создает воздушную прослойку. Она эффективно справляется с функциями барьера и увеличением изоляции помещения от посторонних шумов. Во всех западных технологиях каркасного домостроения – она является необходимым условием.

Изображение

Каркас стен

При устройстве каркаса стены мы не используем брусочки 30 и 40 мм даже в одноэтажных домах. Минимальное сечение каркасных стоек-50х100мм в зависимости от количества слоев утепления. Шаг стоек не более 600 мм. В углах дома используется технология «теплый угол» -дополнительно утепляются и зашиваются внешние углы дома.

Изображение

Ветро-гидро и пароизоляция

В наших технологиях мы используем только мембранные пленки ISOSPAN.

Пергамин и прочие сомнительные материалы в наших технологиях отсутствуют. Для справки: Пергамин — это картон, пропитанный специальными битумными растворами. Считается устаревшим и малоиспользуемым материалом. Основной его плюс - низкая цена, чем и пользуются многие производители. Внимание! От высокой температуры в пергамине начинает плавиться битумная пропитка, что сопровождается выделением токсичных веществ и неприятного запаха. Не экономьте на здоровье своих детей!

Изображение

Балки перекрытия

Батут вместо пола? Это не про нас. Балки перекрытия в каскасных домах с мансардой как минимум 200х100мм. Приятный бонус по сравнению с другими производителями.

Изображение

Крыша

Стропильная система – брус 150х50мм, обрешетка – доска обрезная 25 мм толщиной, контробрешетка, кровельные мембранные пленки ISOSPAN (ветро-гидро и пароизоляция). Подшивные-строганная доска.

Изображение

Кровля

В базовую комплектацию мы предлагаем цветной профнастил – оцинкованный металл с полимерным покрытием завода «Металлопрофиль», цвет можно выбрать по каталогу из палитры RAL.

 По пожеланию клиента может быть заменена на любой тип покрытия.

Изображение

Утеплитель

В наших технологиях мы используем только качественный плитный базальтовый утеплитель высокой плотности ISOROCK. Срок годности Вашего строения во много зависит от того как долго прослужит утеплитель. Низкоплотные, рулонные и даже некоторые плитные бюджетные утеплители после 2-3 лет эксплуатации просто превращаются в труху, и дом полностью лишается утепления. Поменять его дело очень трудозатратное. Поэтому утеплитель- не тот пункт на котором нужно экономить. В наших технологиях мы утепляем «по контуру»-стены, полы, скаты крыши и фронтоны в домах с мансардой. Стены, пол и потолок в одноэтажных домах.

Изображение

Окна

В зависимости от комплектации дома мы предлагаем качественные пластиковые окна немецкого профиля REHAU однокамерного или двухкамерного стеклопакета. По желанию клиента можно выбрать любой цвет профиля, москитные сетки и прочие аксессуары. Окна обрамлены деревянными наличниками и отливом в цвет окон (по умолчанию-белым). Крепятся на монтажные пластины с запениванием швов.

Изображение

Двери

Входная дверь – металлическая Российского производителя. Межкомнатные двери – деревянные, филенчатые.

Изображение

Доставка

30 км от любого офиса бесплатна. Необходим подъезд грузовой техники к участку.

Изображение

Установка

Все наши бригады – коломенские плотники, официально трудоустроенные, поэтому проживание бригад, покупка бытовки и прочее не требуется.

Изображение

Место строительства

Для строительства дома или бани необходим участок этого же размера + 1м хотя бы с трех сторон. Также необходимо место под складирование материалов 6х3 м. Заезд техники на участок не требуется

Изображение

Подготовка под фундамент

Для монтажа фундамента необходимо подготовить площадку - выкорчевать пни, убрать деревья и другие постройки. Демонтировать старый фундамент. Зимой расчищать снег для свайно-винтового фундамента - не требуется!

Изображение

Электричество

Предоставляется клиентом. Если такой возможности нет -  мы привезем свой генератор. Стоимость на весь период строительства -5000 руб.

Изображение
Изображение

хотите индивидуальное решение Изменение конструкции

Вы можете дополнить дом пристройками и террасами, изменить планировку или немного подвинуть стены по вашему вкусу. Мы реализуем любые ваши идеи.

Сложно сделать правильный выбор? наши специалисты помогут

Консультация бесплатна, и она вас ни к чему не обязывает

давайте обсудим ваш новый дом

Отправляя данную форму, Вы соглашаетесь с политикой конфиденциальности
Рассчитать стоимость